







- Zīmols: GROHE (Vācija)
- Modelis: 11BA1105
- Svars: 25.00kg
- EAN: 4065305019795
Pieejamība: 3-5 darba dienas
Default | |
Vāks ar Soft Close | Jā |
Raksturlielumi | |
Montāžas veids | Gipškartona konstrukcijā |
Pogas Krāsa | Hromēta |
RimFree (Bez skalošanas apmales) | Jā |
Tualetes poda komplekts Grohe rāmis Rapid SL+WC pods Kielle Gaia Rimless poga+vāks SoftClose 11BA1105
Komplektā ietilpst
• Grohe Rapid SL priekšsienas uzstādīšanas modulis ar slēptu tvertni
• kompakts sienas tualetes poda kielle Gaia ar SoftClose sēdekli
• Grohe Skate Cosmopolitan dubultā skalošanas vadības poga
• trokšņu samazināšanas komplekts un sienas savienojums
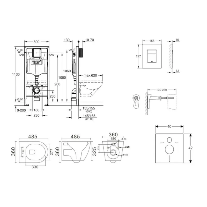
Rapid SL priekšsienas uzstādīšanas modulis pie sienas piekarināmam tualetes podam ar GD 2 cisternu
• konstrukcijas augstums 1,13 m
• montāžai pie sienas vai montāžai vieglā starpsienā
• tērauda rāmis, pulverkrāsots, pašnesošs
• ģipškartona apšuvumam, pilnībā samontēts
• TÜV sertificēts
• skrūvju atstatums 180/230 mm
• Izvads Ø 90 mm
• regulējams dziļums
• Redukcija Ø 90/110 mm
• ieplūdes un izplūdes komplekts
• GD 2 cisterna, 6 - 9 l
• rūpnīcā iestatīts uz 6 l - 3 l
• Pneimatiskais iztukšošanas vārsts piedāvā 3 darbības režīmus: 2 darbību skalošana, starts/stop, vai nepārtraucams (tikai starts)
• ūdens ieplūde no kreisās/labās vai aizmugures
• I vārstu grupa - zems trokšņa līmenis
• izolēts no kondensācijas ūdens
• DN 15 ūdens savienojums ar integrētu leņķa vārstu un skrūvju savienojumu bez instrumentiem
• uzstādīšanai nav nepieciešami instrumenti
• vadības vārpstas, ieskaitot aizsardzību
• būvniecības posmā
• vertikālai vai horizontālai lietošanai
Skate Cosmopolitan vadības poga
• 2 darbību skalošanai vai start/stop funkcijai
• pneimatiskajam iztukšošanas vārstam AV1
• horizontāls un vertikāls stiprinājums
• izmēri: 156 x 197 mm
• izgatavots no ABS
• GROHE StarLight hroma apdare
• GROHE EcoJoy tehnoloģija zemam ūdens patēriņam un perfektai plūsmai
Ātrs SL sienas savienojums
• priekš sienas montāžai
• elementu stiprināšanai pie sienas vai gaišas starpsienas priekšā
• pakāpeniska dziļuma regulēšana 130-230 mm
• Apšuvuma kronšteins montāžai vienā vai rindā
• stiprinājuma materiāls
• 2 gabali iepakojumā
Kompakta sienas tualete Gaia
• krāsa: balta
• izmēri: 360 x 485 mm
• Bezmalu dizains
• slēptais stiprinājums
• dziļa pietvīkums
• skalošanas tilpums 4/6 l
Tualetes sēdeklis
• krāsa: balta
• ar SoftClose lēnas aizvēršanas funkciju
• viegli noņemams vieglai apkopei