









- Zīmols: Villeroy & Boch (Vācija)
- Modelis: 111.355.00.5 NI3
- Svars: 35.00kg
- EAN: 4065305003497
Pieejamība: 3-5 darba dienas
Tualetes poda komplekts Geberit Duofix rāmis ar Villeroy & Boch podu, SoftClose vāku, ar Matētu Hroma pogu Sigma01 pogu
Iebūvējams komplekts, tualete, tualetes pods un vadības
poga
Satur
- Geberit
Duofix iebūvējamais modulis (111.355.00.5) ar Sigma slēpto
skalošanas tvertni 12 cm
- trokšņu
samazināšanas komplekts
- Villeroy
& Boch Subway 2.0 piekaramā keramikas tualete ,
ieskaitot Slim tualetes poda vāku
- DirectFlush bezapmales
skalošanas tehnoloģija
- AquaReduct ūdens
taupīšanas tehnoloģija
- CeramicPlus keramikas
glazūras pārklājums, kas nodrošina optimālu higiēnu un tīrību
- Ātrās
atbrīvošanas nerūsējošā tērauda rokturi
- Pakāpeniska,
klusa aizvēršanās ar SoftClose funkciju
- Geberit Sigma01 2
funkciju skalošanas plāksne , matēts hroms
Augstākās klases produkts ar ļoti klusu darbību. Elastīgs
dizains, ātra un vienkārša uzstādīšana.
Šis pilnais komplekts ir pieejams arī ar citiem vadības pogu
dizainiem.
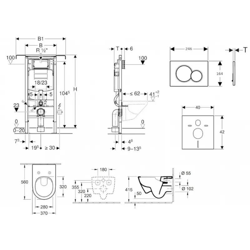
Geberit Duofix montāžas elements piekaramajam tualetes
podam ar Sigma slēpto tvertni 12 cm, uzstādīšanai starp sānu sienām
Lietošanas mērķis
- konstrukcijām,
kas izgatavotas, izmantojot sauso procesu
- uzstādīšanai
daļēji augstās vai telpas augstumā esošās iebūvējamās sienās
- uzstādīšanai
telpas augstuma instalācijas sienās
- uzstādīšanai
Geberit Duofix sistēmas sienās, kas ir daļēji augstas vai istabas augstumā
- uzstādīšanai
šaurās telpās un nišās
- piekarināmām
tualetēm ar savienojuma izmēriem atbilstoši standartam EN 33:2011
- piekarināmām
tualetēm ar izvirzījumu līdz 62 cm
- 1
skalošanas daudzumam, 2 skalošanas daudzumiem vai skalošanas
sākuma/apturēšanas funkcijai
- grīdas
biezumam 0–20 cm
Funkcijas
- pašbalstošs
rāmis ar pulverkrāsojumu
- regulējams
platumā
- rāmis
ar urbtiem caurumiem Ø 9 mm stiprināšanai pie koka konstrukcijas
- rāmis
sagatavots WC keramikas balstiem ar nelielu atbalsta virsmu
- cinkoti
balsti
- regulējami
balsti 0–20 cm
- balsti
ar pretslīdes pārklājumu
- grozāmas
pamatplāksnes
- Pamatnes
plātnes dziļums piemērots uzstādīšanai U-veida profilos UW 50 un UW 75, kā
arī Geberit Duofix sistēmas profilos
- Savienojošais
līkums uzstādīšanai bez instrumentiem dažādos dziļumos, regulēšanas
diapazons 45 mm
- Skaņas
izolēts savienojuma elkoņa stiprinājums
- slēpta
tvertne ar priekšējo vadību
- Slēptā
tvertne ar izolāciju pret kondensātu
- ar
rūpnīcas iestatījumiem iespējama tūlītēja papildu skalošana
- Slēptās
tvertnes uzstādīšanas un apkopes darbi bez instrumentiem
- ūdens
ieplūde aizmugurē vai augšpusē centrā
- Rupjas
montāžas vāks apkopes atverei aizsargā pret mitrumu un netīrumiem
- Apkopes
atveres pārsegs rupju uzstādīšanu veikšanai ar iespēju saīsināt
- aprīkots
ar caurules aizsargu padeves caurulei, lai pievienotu Geberit AquaClean
dušas tualetes
- ar
iespēju piestiprināt elektroapgādi
Tehniskie dati
- spiediens
pie plūsmas ātruma: 10–1000 kPa
- maksimālā
ūdens temperatūra: 25 °C
- Skalošanas
tilpums, rūpnīcas iestatījums: 6 un 3 l
- liels
skalošanas apjoms, regulēšanas diapazons: 4,5 / 6 / 7,5 l
- mazs
skalošanas tilpums, iestatīšanas diapazons: 3–4 l
Piegādes saturs
- Ūdens
ieplūde R 1/2", piemērota MF, ar integrētu leņķa vārstu un rokas
riteni
- Apkopes
atveres rupjas montāžas vāks
- Tualetes
savienojuma komplekts, Ø 90 mm
- 90°
savienojuma līkums no PE-HD, Ø 90 mm
- PE-HD
adapteris, Ø 90 / 110 mm
- 2
aizsargspraudņi
- 2
vītņoti stieņi M12
- stiprinājuma
materiāls
Trokšņu slāpēšanas komplekts pie sienas stiprināmām
tualetēm
- keramikas
stiprināšanai ar stiprināšanas attālumu 18 cm vai 23 cm
- pārtrauc
trokšņu pārraidi tualetē un bidē
- materiāls:
polietilēna putas
- 1x
skaņas izolācijas ieliktnis
- 2x
paplāksne
Subway 2.0 piekaramā tualete
- DirectFlush skalošanas
dizains bez apmales
- skalošanas
tilpums: 3/4,5 l
- aizmugurējā
horizontālā atkritumu tvertne
- izmēri:
370 x 560 mm
- Materiāls:
sanitārā keramika
- krāsa:
Alpu balta ar CeramicPlus apdari
- sienas
stiprinājuma uzstādīšana
- nav
piemērots spiediena/pneimatiskajiem skalotājiem
Plāns tualetes sēdeklis ar vāku
- plāns
dizains
- Pakāpeniska
locīšana ar mīkstu aizvēršanos
- materiāls:
duroplasts
- krāsa:
Alpu balta
- nerūsējošā
tērauda eņģes
- QuickRelease vienkārša
sēdekļa noņemšana
Vadības poga Sigma01, 2 skalošanas tilpumiem
- Geberit
Sigma iebūvējamo tvertņu skalošanas kontrolei
- priekšējā
vadība
- Skaņas
izolēti spiedpogas stieņi, ātra regulēšana bez instrumentiem
- izmēri:
246 x 164 mm
- materiāls:
plastmasa
- krāsa:
matēts hroms, viegli tīrāma virsma
- vadības
spēks:
- montāžas
rāmis
- 2
regulējami rokturi
- 2
spiedpogu stieņi
Montāžas specifikācijas
Sausā procesa montāžas elements, kas paredzēts uzstādīšanai
starp divām sienām. Jūs novērtēsiet tā sānu stiprinājumu vietās, kur
aizmugurējā siena nav pietiekami nestspējīga vai kur stiprinājums pie sānu
sienām ir tehniski vienkāršāks. Tas ir ideāli piemērots, piemēram: saliekamām
koka ēkām vai paneļu māju dzīvojamajiem kodoliem. Rāmja konstrukcija nodrošina
vienkāršu un uzticamu stiprinājumu starp divām sienām. To var piestiprināt
praktiski pie jebkura būvmateriāla, sākot no paneļa līdz ķieģeļu (piemēram, ķieģeļu,
ytong) vai koka sienai, līdz pat vieglas ģipškartona starpsienas (piemēram,
Knauf vai Rigips) sijai.
Elements ir piestiprināts pie grīdas, izmantojot divus balstus, kas ir
nepārtraukti izvelkami un tādējādi ļauj individuāli regulēt tualetes poda
augstumu. To īpaši novērtēs garāki, vecāki cilvēki un cilvēki ar invaliditāti,
sēžot un stāvot. Ievelkamās horizontālās starplikas nodrošina vienkāršu un
uzticamu uzstādīšanu pat dažādos telpu platumos. Vārstu (ieplūdes un izplūdes)
iespējamā demontāža ir vienkārša, pateicoties pietiekami lielajai apkopes
atverei, kas paslēpta aiz vadības pogas. Apšuvumu un apšuvumu var piestiprināt
tieši pie elementa rāmja, tādējādi novēršot nevajadzīgu tualetes telpas
samazināšanu. Duofix elementa konstrukcija ļauj to salikt tā, lai to varētu
demontēt, piem. stāvvadu rekonstrukcijas gadījumā uzstādīšanas šahtā. Duofix ir
stingri nostiprinātas visas notekūdeņu, ūdens un armatūras pieslēgšanas
atveres, kas vienkāršo uzstādīšanu un samazina nepareizu savienojumu iespējamību
līdz minimumam.