









- Zīmols: Villeroy & Boch (Vācija)
- Modelis: 111.355.00.5 NI1
- Svars: 35.00kg
- EAN: 4065305001912
Pieejamība: 3-5 darba dienas
Tualetes poda komplekts Geberit Duofix rāmis ar Villeroy & Boch podu, SoftClose vāku, ar Baltu pogu Sigma01 pogu
Iebūvējams komplekts, tualete, tualetes pods un vadības poga
Satur
- Geberit Duofix iebūvējamais modulis (111.355.00.5) ar Sigma slēpto skalošanas tvertni 12 cm
- trokšņu samazināšanas komplekts (SP 156SET)
- Villeroy & Boch Subway 2.0 piekarināms keramikas tualetes pods , ieskaitot Slim tualetes poda vāku (5614R2R1)
- DirectFlush bezapmales skalošanas tehnoloģija
- AquaReduct ūdens taupīšanas tehnoloģija
- CeramicPlus keramikas glazūras pārklājums, kas nodrošina optimālu higiēnu un tīrību
- Ātrās atbrīvošanas nerūsējošā tērauda rokturi
- Pakāpeniska, klusa aizvēršanās ar SoftClose funkciju
- Geberit Sigma01 divvirzienu skalošanas plāksne , Alpu baltā krāsā (115.770.11.5)
Augstākās klases produkts ar ļoti klusu darbību. Elastīgs dizains, ātra un vienkārša uzstādīšana.
Šis pilnais komplekts ir pieejams arī ar citiem vadības pogu dizainiem.
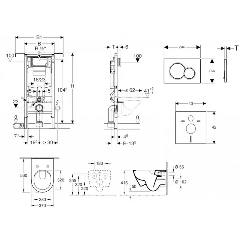
Geberit Duofix montāžas elements piekaramajam tualetes podam ar Sigma slēpto tvertni 12 cm, uzstādīšanai starp sānu sienām
Lietošanas mērķis
- konstrukcijām, kas izgatavotas, izmantojot sauso procesu
- uzstādīšanai daļēji augstās vai telpas augstumā esošās iebūvējamās sienās
- uzstādīšanai telpas augstuma instalācijas sienās
- uzstādīšanai Geberit Duofix sistēmas sienās, kas ir daļēji augstas vai istabas augstumā
- uzstādīšanai šaurās telpās un nišās
- piekarināmām tualetēm ar savienojuma izmēriem atbilstoši standartam EN 33:2011
- piekarināmām tualetēm ar izvirzījumu līdz 62 cm
- 1 skalošanas daudzumam, 2 skalošanas daudzumiem vai skalošanas sākuma/apturēšanas funkcijai
- grīdas biezumam 0–20 cm
Funkcijas
- pašbalstošs rāmis ar pulverkrāsojumu
- regulējams platumā
- rāmis ar urbtiem caurumiem Ø 9 mm stiprināšanai pie koka konstrukcijas
- rāmis sagatavots WC keramikas balstiem ar nelielu atbalsta virsmu
- cinkoti balsti
- regulējami balsti 0–20 cm
- balsti ar pretslīdes pārklājumu
- grozāmas pamatplāksnes
- Pamatnes plātnes dziļums piemērots uzstādīšanai U-veida profilos UW 50 un UW 75, kā arī Geberit Duofix sistēmas profilos
- Savienojošais līkums uzstādīšanai bez instrumentiem dažādos dziļumos, regulēšanas diapazons 45 mm
- Skaņas izolēts savienojuma elkoņa stiprinājums
- slēpta tvertne ar priekšējo vadību
- Slēptā tvertne ar izolāciju pret kondensātu
- ar rūpnīcas iestatījumiem iespējama tūlītēja papildu skalošana
- Slēptās tvertnes uzstādīšanas un apkopes darbi bez instrumentiem
- ūdens ieplūde aizmugurē vai augšpusē centrā
- Rupjas montāžas vāks apkopes atverei aizsargā pret mitrumu un netīrumiem
- Apkopes atveres pārsegs rupju uzstādīšanu veikšanai ar iespēju saīsināt
- aprīkots ar caurules aizsargu padeves caurulei, lai pievienotu Geberit AquaClean dušas tualetes
- ar iespēju piestiprināt elektroapgādi
Tehniskie dati
- spiediens pie plūsmas ātruma: 10–1000 kPa
- maksimālā ūdens temperatūra: 25 °C
- Skalošanas tilpums, rūpnīcas iestatījums: 6 un 3 l
- liels skalošanas apjoms, regulēšanas diapazons: 4,5 / 6 / 7,5 l
- mazs skalošanas tilpums, iestatīšanas diapazons: 3–4 l
Piegādes saturs
- Ūdens ieplūde R 1/2", piemērota MF, ar integrētu leņķa vārstu un rokas riteni
- Apkopes atveres rupjas montāžas vāks
- Tualetes savienojuma komplekts, Ø 90 mm
- 90° savienojuma līkums no PE-HD, Ø 90 mm
- PE-HD adapteris, Ø 90 / 110 mm
- 2 aizsargspraudņi
- 2 vītņoti stieņi M12
- stiprinājuma materiāls
Trokšņu slāpēšanas komplekts pie sienas stiprināmām tualetēm
- keramikas stiprināšanai ar stiprināšanas attālumu 18 cm vai 23 cm
- pārtrauc trokšņu pārraidi tualetē un bidē
- materiāls: polietilēna putas
- 1x skaņas izolācijas ieliktnis
- 2x paplāksne
Subway 2.0 piekaramā tualete
- DirectFlush skalošanas dizains bez apmales
- skalošanas tilpums: 3/4,5 l
- aizmugurējā horizontālā atkritumu tvertne
- izmēri: 370 x 560 mm
- Materiāls: sanitārā keramika
- krāsa: Alpu balta ar CeramicPlus apdari
- sienas stiprinājuma uzstādīšana
- nav piemērots spiediena/pneimatiskajiem skalotājiem
Plāns tualetes sēdeklis ar vāku
- plāns dizains
- Pakāpeniska locīšana ar mīkstu aizvēršanos
- materiāls: duroplasts
- krāsa: Alpu balta
- nerūsējošā tērauda eņģes
- QuickRelease vienkārša sēdekļa noņemšana
Vadības poga Sigma01, 2 skalošanas tilpumiem
- Geberit Sigma iebūvējamo tvertņu skalošanas kontrolei
- priekšējā vadība
- Skaņas izolēti spiedpogas stieņi, ātra regulēšana bez instrumentiem
- izmēri: 246 x 164 mm
- materiāls: plastmasa
- krāsa: Alpu balta
- vadības spēks:
- montāžas rāmis
- 2 regulējami rokturi
- 2 spiedpogu stieņi
Montāžas specifikācijas
Sausā procesa montāžas elements, kas paredzēts uzstādīšanai starp divām sienām. Jūs novērtēsiet tā sānu stiprinājumu vietās, kur aizmugurējā siena nav pietiekami nestspējīga vai kur stiprinājums pie sānu sienām ir tehniski vienkāršāks. Tas ir ideāli piemērots, piemēram: saliekamām koka ēkām vai paneļu māju dzīvojamajiem kodoliem. Rāmja konstrukcija nodrošina vienkāršu un uzticamu stiprinājumu starp divām sienām. To var piestiprināt praktiski pie jebkura būvmateriāla, sākot no paneļa līdz ķieģeļu (piemēram, ķieģeļu, ytong) vai koka sienai, līdz pat vieglas ģipškartona starpsienas (piemēram, Knauf vai Rigips) sijai.
Elements ir piestiprināts pie grīdas, izmantojot divus balstus, kas ir nepārtraukti izvelkami un tādējādi ļauj individuāli regulēt tualetes poda augstumu. To īpaši novērtēs garāki, vecāki cilvēki un cilvēki ar invaliditāti, sēžot un stāvot. Ievelkamās horizontālās starplikas nodrošina vienkāršu un uzticamu uzstādīšanu pat dažādos telpu platumos. Vārstu (ieplūdes un izplūdes) iespējamā demontāža ir vienkārša, pateicoties pietiekami lielajai apkopes atverei, kas paslēpta aiz vadības pogas. Apšuvumu un apšuvumu var piestiprināt tieši pie elementa rāmja, tādējādi novēršot nevajadzīgu tualetes telpas samazināšanu. Duofix elementa konstrukcija ļauj to salikt tā, lai to varētu demontēt, piem. stāvvadu rekonstrukcijas gadījumā uzstādīšanas šahtā. Duofix ir stingri nostiprinātas visas notekūdeņu, ūdens un armatūras pieslēgšanas atveres, kas vienkāršo uzstādīšanu un samazina nepareizu savienojumu iespējamību līdz minimumam.