









- Zīmols: GROHE (Vācija)
- Modelis: 38981000
- Svars: 13.06kg
- EAN: 4005176919688
Pieejamība: 3-5 darba dienas
Raksturlielumi | |
Tips | WC rāmji |
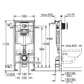
GROHE Rapid SL iebūvējamais WC rāmis + Arena Cosmopolitan taustiņs + sienas stiprinājumi, 38981000.
Komplektā:
Grohe Rapid SL rāmis art. 38528001
Grohe Arena Cosmopolitan skalojamās kastes poga, hroms art. 38858000.
Grohe sienas stiprinājumi art. 3855800M.
Viens no kvalitatīvākajiem iebūvējamajiem rāmjiem, kas raksturojas ar klusu darbību un augstu uzticamību.
Skalošanas kaste GD ar 2, 6-9 l skalošanas režīmiem un nelielu revīzijas lūku. Rūpniecas iestatītjums 6/3 L.
Montāžas augstums 1.13 m, viegla augstuma regulēšana.
2 skrūves stiprinājumi priekš keramiskā poda stiprināšanas, attālums starp skrūvēm 180/230 mm.
Pāreja DN 80/100.
Pneimatiskā skalošanas sistēma ar trim režīmiem: ar 2 ūdens skalošanas režīmiem un Start/Stop mehānismu, vai nepārtrauktu ūdens skalošanu.
Vertikāla montāžā ūdens pieslēgšana no labās, kreisās puses, kā arī no aizmugures vai augšas, ūdens pieslēgšana DN 15.
Garantija: 5 gadi