









- Zīmols: Ravak (Čehija)
- Modelis: X070374
- Svars: 2.50kg
- EAN: 8592626065706
Pieejamība: 3-5 darba dienas
Dušas maisītājs Ravak Eleganta EL 065.60RGB.O2.RB07D (paredzēts ar R-box) rose gold brushed
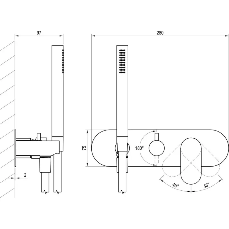
• versija: divvirzienu, ar slēdzi, bez korpusa – paredzēts ar R-box Horizontal RB 07D.50
• kārtridžs (diametrs, materiāls): 35 mm, keramika
• krāsa: Rose Gold Brushed - rozā zelts
• Jaucējkrāna garantija: 5 gadi
• piemērots: Vannām ar pārplūdi un pārslēgu rokas dušai. Dušas kabīnēm ar fiksētu galvu un rokas dušu
• papildus aksesuāri iegādei: R-box Horizontal RB 07D.50, dušas komplekts un citi tādas pašas krāsas aksesuāri
Zemapmetuma jaucējkrāns ar dušas komplektu (šļūtene un rokas duša) ir gatavs lietošanai ar R-Box instalācijas korpusu, kas būtiski atvieglo darbu un uzlabo visa darba rezultātu. Pilnīgam vannas istabas dizainam iesakām to kombinēt ar citiem Eleganta jaucējkrāniem tādā pašā krāsā. Tīrīšanai iesakām izmantot RAVAK Cleaner Chrome.
Zemapmetuma jaucējkrāna RB 07B.50 pamatkorpuss nav jaucējkrāna sastāvdaļa, un tas ir jāiegādājas atsevišķi. R-box satur materiālus tā piestiprināšanai pie sienas, bet neietver savienojumus ūdensvadiem vai citiem santehnikas materiāliem. R-box ir jaucējkrāna iekšējā korpusa funkcionējoša plastmasas pārsega daļa, kas nodrošina ūdens padevi vannas istabā pilnībā funkcionējošu pat tad, ja tiek demontēta jaucējkrāna augšējā daļa. Ar šo plastmasas daļu ūdens padevi var atgaisot, nepārtraucot to.
Šis modelis ir paredzēts minimālisma risinājumu cienītājiem. Tas ir paredzēts slēptai uzstādīšanai, izmantojot R-box. Elegance ir skaistums, kas nāk no līdzsvara. Tas atspoguļojas katrā jaucējkrāna detaļā. Ūdens plūsma atbilst metāla stabilitātei. Vienmērīga jaucējkrāna sviras vadība, viegli regulē strāvu un ūdens temperatūru. Sānu slēdzis ļauj pārslēgties starp vannas uzpildīšanu un dušu vai starp rokas dušu un augšējo dušu.
Tas, vai krāsa kļūs par vannas istabu vienojošo elementu, ir atkarīgs no jums. Vai arī tas var pilnībā pārveidot interjera radīto iespaidu. Izvēlieties krāsu opciju, kas piešķir jūsu vannas istabai papildu stila pieskārienu. Mēs to piegādājam piecās krāsās: Chrome, White Velvet, Black Matt, Graphite Brushed, nebo Rose Gold Brushed.